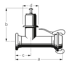
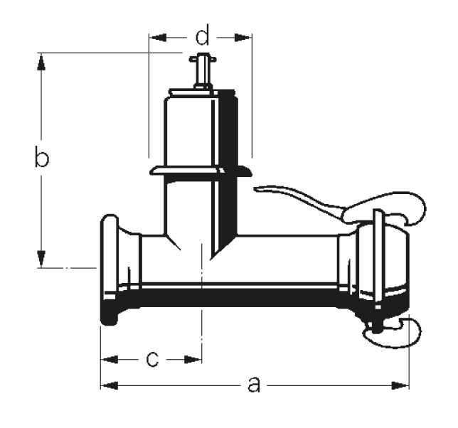
Złącze BAUER - Trójnik Hydrantowy - S35 i S37
uzupełnić

Uwagi Złącze w części żeńskiej nie posiada uszczelki. Uszczelka dostępna oddzielnie pod nazwą S4.

rozmiar złącza żeńskie [mm] część żeńska [cale] rozmiar złącza męskie [mm] część męska [cale] długość całkowita (a) [mm] wysokość mont. (b) [mm] wymiar mont. (c) [mm] szerokość zaworu (d) [mm] waga [kg] ciśnienie pracy [bar] nr artykułu
76 3" 76 3" 365 240 124 111 3,55 12
89 3 1/2" 76 3" 393 252 120 111 4,25 20
108 4 1/4" 76 3" 456 263 148 111 5,65 12
133 5 1/4" 76 3" 482 279 168 111 7,65 12
159 6 1/4" 76 3" 517 295 172 111 9,95 12
194 7 5/8" 76 3" 620 308 203 111 14,40 12
108 4 1/4" 102 4" 457 320 151 156 6,50 12
133 5 1/4" 102 4" 488 356 157 156 8,60 12
159 6 1/4" 102 4" 522 368 174 156 11,80 12
194 7 5/8" 102 4" 620 390 205 156 20,40 12

  • Wykonanie ze stali ocynkowanej
Interesują Cię inne produkty, potrzebujesz fachowego doradztwa?
Zadzwoń do nas, a nasi specjaliści dobiorą produkty dostosowane do Twoich potrzeb.
kontakt do firmy Intertech
Korzystamy z zabezpieczeń Google reCAPTCHA.
Obowiązują Polityka prywatności, Warunki użytkowania usług Google oraz Polityka prywatności INTERTECH.
Copyright 2026 INTERTECH Importer węży i złączy dla przemysłu. Wszelkie prawa zastrzeżone. Developed by Cansoft sp. z o.o.